我一直认为两居是一个很尴尬的存在,时间久了你会发现,真心不够住,父母来了要跟孩子挤在一起,打算要二胎只能买个高低床委屈孩子,来了客人就只能打地铺了。。。两居室远远不能满足一个普通家庭的生活需求。
本案的屋主W先生花了多年积蓄在市区首付买了一套83㎥的两居室,改三居一直是夫妻二人的愿望,而牵一发而动全身,市场转悠半月发现对于伤筋动骨的拆改房屋一般的装修公司又都不愿意接,就算能接的公司也都是全包给工程队,工程队的专业水准实在让人怀疑,偶然机会二人在网上看到设计师改造房屋的帖子,心动之下决定邀请专业的空间设计师帮助拆改。
改户型,请参考这里:想要改户型?先要看懂你家的墙,否则会有大麻烦


一、向客厅借空间,新砌一间房

买房真是一个痛苦的经历,W夫妇家看了大半年房子,打了无数个房产中介的电话,最终看中了现在的这套才算尘埃落定,亲临现场你会发现这是一套大多数人都会很满意的正规两居室,两个卧室一样大,且朝向都一样,这样的户型还是很难得的。
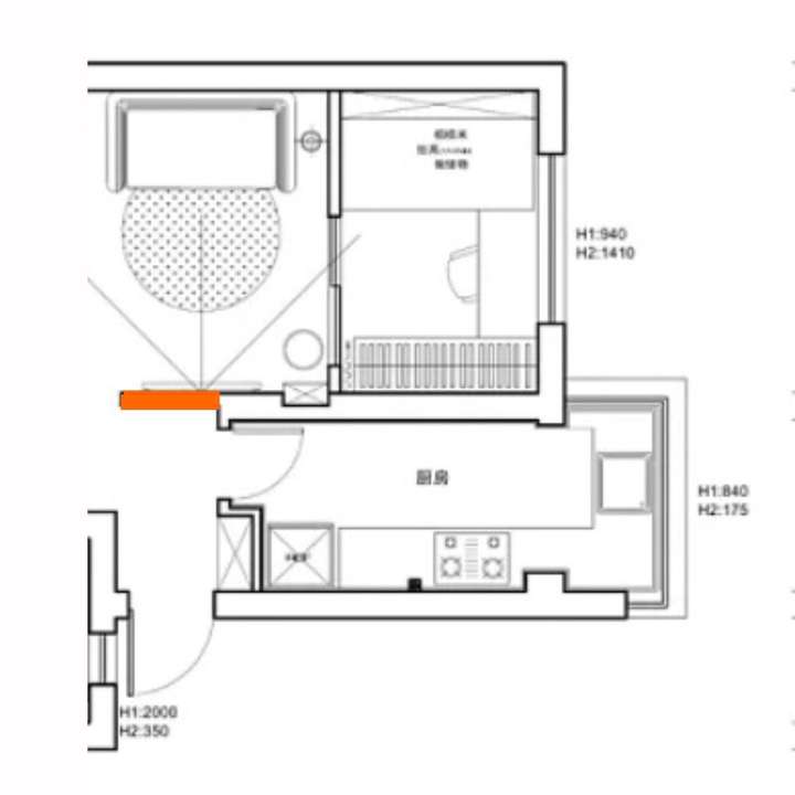
改造前,设计师跑了无数次W夫妇家,对整个房子的承重结构和整体状况勘察多次后,决定在客厅借空间,重新砌出一个房间来。
改客厅对空间比例的拿捏很重要,规划不合理就会影响居住的舒适度、采光受阻、房子变小等问题,为此设计师对整个房屋都户型都做了微调整。

W先生家本来的客厅还不算小,足足有二十多平米,
走进改造后的小屋会感觉别有动天,
衣橱、书桌、书架隔板、床全齐了,空间明亮清新、这里日后既作为书房工作区,又作为父母居住的场所!

小屋的这张地台床非常宽敞,足以睡下两个成人,床和吊柜全都定制了储物空间,用来容纳老人的衣物,让老人也有家的感觉,比起给老人一张床,他们更需要的其实是一个在儿女家能自由安排个人物品的私人空间。▼

起初,夫妇俩怕改变户型会影响客厅的采光,现在看来玻璃移门发挥了关键性作用,设计师定制了款式最简洁的黑边双层玻璃移门,让光线穿透玻璃自然洒入室内,晚上可以拉上窗帘,又保证小屋的私密性!

二、补了一块墙,弥补变小的客厅
两居变三居,总会有所牺牲,本来可以拥有宽敞明亮的大客厅,加了一间房间后客厅面积明显缩水,而且还面临电视无处安放的尴尬。
设计师将电视墙延伸出一米,这样客厅就变得方正,而且刚好作为入户玄关,也保证了居室的隐私。


新砌的墙挂上一副装饰画,让整个空间变得艺术灵动。▽

还原的客厅方正格局▼

设计师特地挑选了一张节省空间的三人沙发,2.2米的长度放在客厅依然绰绰有余,没有过多的家居陈设,简单清爽,改完的客厅舒适温馨。

- 1、新砌墙要植筋 !!!
为了节省空间,客厅与小屋的这面墙,采用8CM的轻体砖薄砌工艺,新墙和旧墙之间做了拉筋处理,整面墙植筋保证新墙稳固性,(想判断一家装修公司靠不靠谱,问他怎么新砌墙就知道了,现在多数装修公司都会省去这道工艺,能省则省嘛,反正业主也不明白是怎么回事,等到后期墙面开裂了就会引来无数麻烦。)具体可咨询百积木硬装工程师。

效果还不错哦▼

- 2、为啥两居变三居后,空间也不会显得拥挤?
虽然客厅被损失了很多面积,但保留开放式起居空间,让整个房屋更具延伸性,在视觉上空间更显宽敞,这也是这个两居改三居后也不显得局促的主要原因。
所以,客厅改卧室的前提是,客厅够大、整体户型够长,客厅和餐厅为连为一体的开放式设计。


W先生家人口众多,有时候夫妻二人的父母会来小住,时间久了,四位老人的东西也越来越多,家里总是堆满无处安放的零碎杂物,所以本次房屋改造的重点就是储物问题。
除了三个卧室都定制了储物柜,设计师在餐厅还定制了一个顶天立地的6门壁柜,足够容纳老人的琐碎杂物。

- 女主人最爱的现代厨房
厨房跟过去的格局变动不大,只是格外定制了潜入式烤箱和蒸箱柜子,是W太太喜欢很久的,也是所有女人想要提高生活品质的厨房必备品。
厨房白天采光很好,亲临现场你会觉得水泥灰色瓷砖更有格调和质感。

三、隐形门设计,打破餐厅对着卫生间的尴尬
这个房子唯一不好的地方就是餐厅对着厕所门,无论是从风水和居住习惯来看都是棘手的问题,房子很小,又不能打隔断,卫生间改户型又牵扯掉马桶、淋浴花洒的位置调整,很不现实。
设计师把卫生间的门设计成隐形门,并安装了按压式隐形拉手,轻轻一按门就能打开,整墙做了木面贴皮,不仔细看,还真是找不到卫生间在哪?


打开门后,一个干净清爽的干湿分离卫浴间映入眼帘,这里也是夫妇二人最喜欢的设计之一。

四、改变卧室门洞,成全了开放式户型
过去卧室门正对着餐厅,为了让出进出卧室的空间,餐桌只能横着放,很占地。
后来在设计师的坚持下,改变门洞的位置,让餐厅变得方正整体,出入卧室的动线也更加合理。当然,最终才能实现客厅的规划设计。

走进卧室,宽敞明亮▽

再来看个整体效果,浅灰色床搭配米白色墙漆,干净清爽,透过白纱清晨阳光打进来,赖在这样的床上,真心不想起……


灰色和原木,真的怎么搭都不会出错,值得借鉴哦~▼


床对面定制了工作台,是夫妇两强烈要求的,除此之外还设计了抽屉、收纳柜,便于存放电脑周边的物品、文件、书籍等。

- 儿童房
W先生将原来旧屋的儿童床搬到了次卧,并定制了书桌和隔板书架,孩子现在还小,儿童房并没有做过多的装饰,随着孩子的成长,这里将变为一个自由多变的空间。

明亮治愈系的亮色窗帘很适合放在儿童房▼

(完)
注:本文为美豪斯平台设计师原创作品,真实案例,请勿转载!
(如果你也想要把家装成这样,可以通过下方联系方式找到本案设计师!)

我们会在知乎不定期分享家装知识,设计咨询可加作者微信:Mhouse777(北京 /上海)t693599036(外地)上海正在征集样板间
关于我们:更懂空间美学的80后清华建筑师团队 专注空间利用和颜值派全屋定制。
真诚分享,喜欢记得点赞!